MODERNISIERUNG - RENOVIERUNG - BEDÜRFNISANPASSUNG
Sie wollen ihr, in die Jahre gekommenes, Heim modernisieren oder eine neu erstandene Immobilie ihren Bedürfnissen anpassen?
Dann unterstützen wir sie gerne bei diesem spannenden Prozess.
Analyse
Wir besichtigen vor Ort und besprechen mit Ihnen Ihre Wünsche und Vorstellungen.
Entwurf
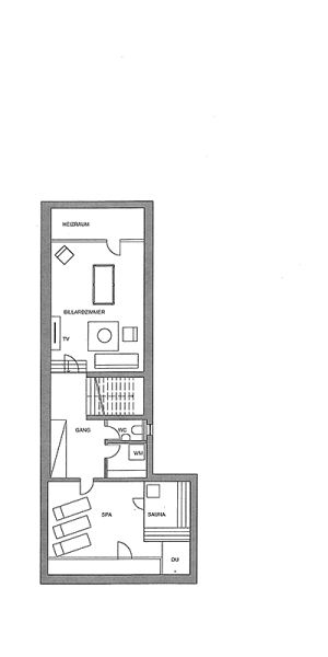
Wir bringen Ihre Ideen in Form von Grundrissplänen und Ansichten zu Papier.
Projektieren
Wir übernehmen die Behördenwege für Sie, erstellen Ausschreibungen, suchen die perfekten Handwerker und erstellen einen Ablauf- und Zeitplan.
Kontrolle
Wir kümmern uns um die bauliche Umsetzung und sind Ansprechpartner für sämtliche Handwerker.
Übergabe
Wir übergeben Ihnen Ihre Traumimmobilie, in die Sie sorglos einziehen können.
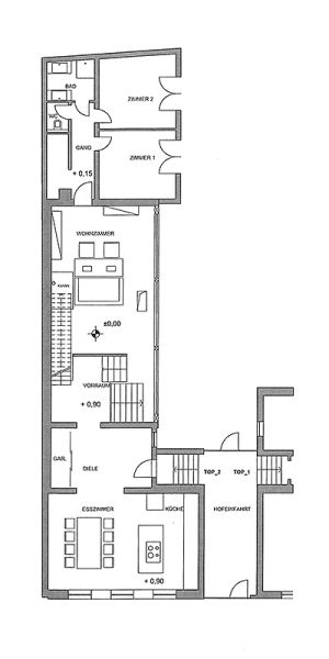
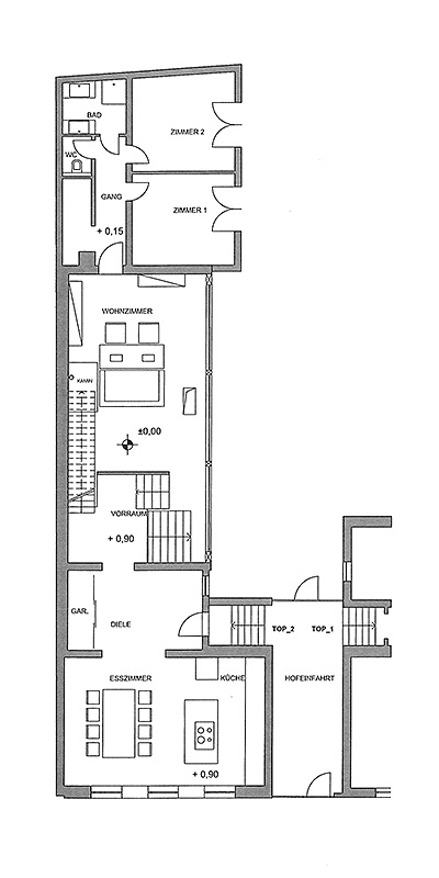
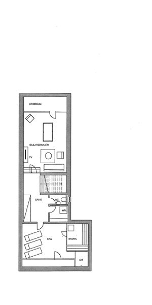
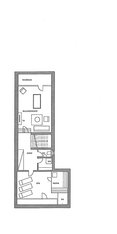
Komplettsanierung Einfamilienhaus Bad Vöslau
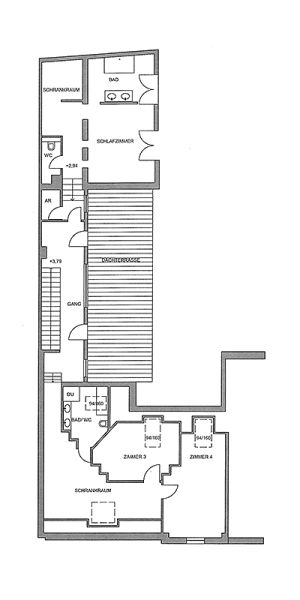
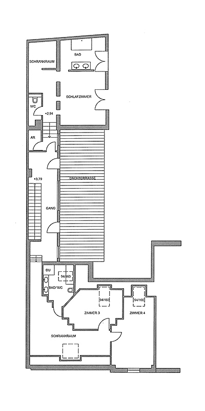
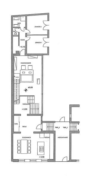
Renovierung einer Eigentumswohnung in Mödling

Komplettsanierung:
-
Erneuerung von Wand, Boden, Decke
-
Bad und WC renoviert





Sanierung einer Eigentumswohnung in einem Biedermeier Haus im 8. Bezirk.

Komplettsanierung:
-
Wohnung entkernt
-
Neue Raumaufteilung
-
Elektrik erneuert
-
Wand, Boden, Decke neu
-
Bad und WC komplett saniert




-
Bogen entfernt

-
Höhere Durchgänge



-
Wand entfernt

-
Neue Raumaufteilung

-
Küche versetzt

Sanierung eines Winzerhauses in der Badener Innenstadt
Komplettsanierung:
-
Haus entkernt
-
Neue Raumaufteilung
-
Neue Haustechnik
-
Wand, Boden, Decke neu
-
Gartengestaltung












































